Dodaj produkty podając kody
- Rekuperator o wydajności 840m3/h z odzyskiem wilgoci, wyposażony w filtry F7 w standardzie.

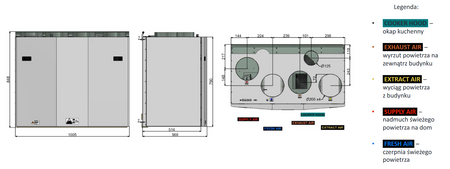
Rekuperator Ensy InoVent 700 BV Lewy
Ensy Inovent 700 to renomowany i niezawodny rekuperator obrotowy, który doskonale odzyskuje ciepło. Urządzenie to jest dostępne w wersjach lewej i prawej do montażu ściennego. Jego wyjątkowa wydajność sięga nawet 840m3/h, co sprawia, że jest on idealnym wyborem do średniej wielkości domów mieszkalnych.

Rekuperator Ensy InoVent 700 opracowany na najnowszej dostępnej technologii zapewnia:
- Prawdziwą oszczędność energii oraz niskie zużycie nawet w ekstremalnie niskich temperaturach. Nie ulega zamarzaniu nawet przy wyłączonej grzałce.
- Dzięki zaawansowanej technologii 3-stopniowego nawilżania ENSY Humidity, zapewnia komfortowe, odpowiednio nawilżone powietrze
- Bezpieczne połączenie z okapem kuchennym z sygnalizacją i funkcją bypassa
- Wyjątkowo cichy w działaniu, nawet od 13dB, co stanowi najniższy poziom hałasu podczas pracy urządzenia
- Innowacyjna funkcja Cool Recovery o dwóch trybach gwarantuje letni komfort schłodzonego powietrza
Precyzyjny system filtracji F7
Efektywność oczyszczania powietrza: ePM1 - w zależności od konkretnego modelu od 55% do 70%
Rozmiar filtra: 140 x 240 x 94 (o aż trzykrotnie większej powierzchni niż filtry standardowe!)
Najwyższa jakość filtracji powietrza została oficjalnie potwierdzona certyfikatem EN ISO 16890.
Wszystkie rekuperatory obrotowe ENSY są standardowo wyposażone w dwa wyjątkowo obszerne i precyzyjne filtry powietrza klasy F7, zapewniające skuteczną ochronę mieszkańców przed mikroskopijnymi, niezwykle szkodliwymi, niewidocznymi dla oka cząstkami pyłów PM1.

W standardzie otrzymasz:
- Higrostat czyli czujnik wilgotności kontrolujący poziom wilgotności powietrza wewnątrz budynku, dbając o utrzymanie odpowiedniego poziomu wilgotności
- Filtry F7 o trzykrotnie większej powierzchni niż standardowe filtry, zdolne do zatrzymania szkodliwych pyłków PM1, zapewniające ochronę zarówno dla ludzi, jak i zwierząt. Filtry te mogą zostać zastąpione przez jeszcze bardziej komfortowe filtry F7 z węglem aktywnym, które skutecznie eliminują uciążliwe zapachy z zewnątrz
- Dodatkową grzałkę, przydatną w przypadku bardzo niskich temperatur na zewnątrz, gwarantująca niezakłóconą pracę rekuperatora
- Wysoka niezawodność i wydajność - wszystkie komponenty pochodzą wyłącznie od uznanych europejskich producentów
- Zintegrowany sterownik wyposażony w WiFi w celu bezproblemowej obsługi rekuperatora













