Dodaj produkty podając kody
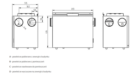
Rekuperator WANAS 415 H HI-TECH stanowi awangardową centralę wentylacyjną z poziomym układem króćców, stworzoną do efektywnej wentylacji zarówno w domach jednorodzinnych, jak i w obiektach usługowych.
Najnowsza linia produktów WANAS HI-TECH reprezentuje szczytowe osiągnięcia technologiczne, skondensowane w kompaktowej jednostce centrali. Elegancko podświetlane logo oraz ścienny szklany panel sterujący dodają nuty nowoczesnego designu, co na pewno przypadnie do gustu entuzjastom nowoczesności. Centrala przeznaczona jest do wentylowania pomieszczeń o powierzchni do 210 m2. Każdy rekuperator standardowo wyposażony jest nowoczesny sterownik ścienny z dotykowym przednim panelem szklanym. Dodatkowo rekuperator, dzięki wbudowanemu modułowi przewodowo łączy się z internetem i może być obsługiwany zdalnie.

Zalety produktu:
- Wymiennik ciepła wykonany z tworzywa o znacznie zwiększonej powierzchni wymiany termicznej.
- Klasa energetyczna A.
- Dostępność opcjonalnego podłączenia do nawilżacza powietrza WANAS UMECTO.
- Wbudowany sterownik wyposażony w zaawansowane funkcje, w tym możliwość komunikacji radiowej do integracji z czujnikami wilgotności miniControl.
- Automatyczny system wyrównywania przepływów XF SYSTEM w instalacji.
- Trzy algorytmy zapewniające ochronę przed zamrażaniem wymiennika. Inteligentna nagrzewnica wstępna, dostosowująca automatycznie swoją moc do warunków.
- Obsługa protokołu komunikacyjnego MODBUS RTU, umożliwiająca integrację rekuperatora z inteligentnym systemem domowym.
- Nowoczesny sterownik z pełnym przednim panelem wykonanym ze szkła.
- Innowacyjne połączenie niepalnych elementów stalowych z nową płytą izolacyjną - HYBRID SYSTEM.
- Wnętrze i obudowa pokryte farbą poliestrową.
- Możliwość zastosowania wymiennika entalpicznego, który dodatkowo poprawia efektywność rekuperatora.














